100平北欧风,利用楼梯做客厅电视背景墙,不仅好看还节省空间
装修风格:现代北欧
实际面积:100㎡
空间格局:3室2厅
设计师:茱莉娅
项目位置:南京
装修造价:10.6W
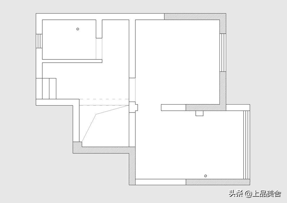
01原始户型图
一层原始结构图
二层原始结构图
这是一套一百平的三居室小复式公寓楼,空间不大,房间的自然采光很好,功能空间完善。
02平面布置图
推荐阅读:呼和浩特在线
滚动内容
-
100平北欧风,利用楼梯做客厅电视背景墙,不仅好看还
家居 · 2020-09-08
-
最IN最潮的129㎡简约设计 看现代家居美学的高级演
家居 · 2020-09-08
-
现代简约风,温柔时尚的宜居之家
家居 · 2020-09-08
-
163m²美式风,自带浪漫气质,打造一个时尚优雅的都
家居 · 2020-09-08
-
124㎡新房,图省事花20万全包出去,完工后比样品房
家居 · 2020-09-08
-
这套380m²江景房,完全就是理想中家的样子
家居 · 2020-09-08
